Here is a perfect property especially for you! Affordable and $31,000 in grants and savings.
These fabulous soon to be built single-storey Torrens Titled house and land packages should tick all the boxes and give you no excuses to not get off the rental roundabout. Each house and land package offers you the convenience of being a full turnkey home, so you won’t need to lift a finger. Sit back and watch your home being built by one of Adelaide longest standing and trusted builders Lodge Construction & Building who are a family-owned business since 1982.
You will also have peace of mind that TIPS will be by your side every step of the way if you have any questions or need help during the construction process and beyond. All free of charge to you as a TIPS client. We will even be there for you at handover to ensure the day goes smoothly.
Most importantly as this is a house and land package you will save almost $16,000 in stamp duty and other govt charges! Also, if you are an eligible first-home buyer you will receive the $15,000 FHOG taking the total savings to $31,000 compared to buying an established property of the same value.
This single-storey home offers 3 bedrooms main with ensuite and walk-in robe, bedrooms 2 and 3 offer generous built-in robes and carpeted flooring.
All homes have large open family/meals area overlooking a fully landscaped backyard. Large kitchen includes pantry, stainless steel appliances, dishwasher. There is also a separate Laundry with great space.
The home offers a single garage with auto roller doors and is situated on a low maintenance allotments of 245-250m². Being a single-storey home this property will provide everyday living solutions for all groups and ages!
The location is simply superb with a major shopping centre just 200M away, 150m from the nearest bus stop and is surrounded by parks with the amazing walking trails of Anstey Hill Recreation Park just 1 km away.
If this sounds like the home for you or if you are an investor looking for a great property with huge tax benefits that will only cost you $89 per week* after all benefits are considers, please call TIPS today. *$89 pw is based on a house and land package loan of $550,000 interest only of 5.75%, running costs $134pw, estimated rent $515 pw & $138 pw being an average tax refund assuming income tax bracket of 32.5cents. Sufficient equity or funds required to fund purchase.
Call today on 1300 719 412 Or Go online at www.tipsolutions.com.au to book an appointment and find out more about these exceptional properties.
St Agnes Plus don’t forget the TIPS Bonus Pack
If you’re an Owner Occupier, the TIPS Kickstarter Package gives you, for no
Cost:
Land Broker Service Fee (retail value $990)
TIPS Move-In Pack
OR
Investor Bonus Pack
Where you allow us to manage your property once it is completed for two years, the TIPS Bonus Pack gives you over $2,700 in value, for an investment of only $990, being:
Land Broker Service Fee (retail value $990)
Discounted Letting/Re-Letting & Renewal Fee (saving approximately $565)
Landlord Insurance 1st year to the value of $314
Advertising of Home for Rental (saving approximately $200)
BMT Tax Depreciation Report (retail value $770)
PLUS a Rent Guarantee for the first 12 months.
Ask your Property Marketing Consultant for a copy of the Bonus Pack form, with the full details including terms and conditions.
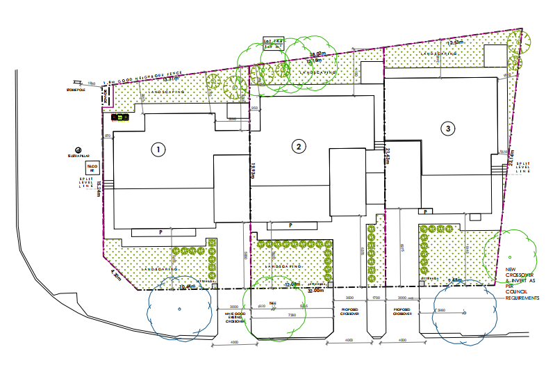
St Agnes Site Plan
St Agnes Important Information
Really important information that we need to tell you in regards this property and the offering.
The material presented in this brochure is to be used as general information only. It is not intended as legal or financial and must not be relied on as such. You should make your own enquiries and obtain independent professional advice tailored to your specific circumstances before making any legal or financial decisions.
This publication has been prepared by Total Investment Property Solutions Pty Ltd, RLA 262420 (known as “TIPS”) and contains background and indicative information only. TIPS has used its best endeavours to ensure the accuracy of this information, but gives no warranty or representation that any or all of the information in this publication, or provided in association with it (collectively, “Content”) is accurate and complete. Subject to any statutory liability that cannot be excluded or limited, we will not be responsible, and disclaim all liability, for any incorrect or misleading Content, and any omission from it. You must make and rely upon your own enquires and investigations and satisfy yourself in relation to the Content. We will not be liable for any loss that you or any other person may incur due to any reliance upon the Content. Photographs are indicative only and may not depict the actual project, proposal or development. All areas, distances, measurements, elevations, maps, plans, diagrams, finishes, fixtures and fittings are approximate only. This publication does not constitute an offer capable of acceptance, and nothing in this publication will give rise to any legal or other obligation between TIPS and you or TIPS’ client and you. The Content is subject to change without notice.
Disclaimer: Total Investment Property Solutions offer this information as an example only. Before making any decision whether to purchase an investment property you should seek your own independent professional advice tailored to your specific needs and circumstances. This content is not to be taken as legal, financial or investment advice. Offer is made 07/11/2020 and will expire once all properties are sold or withdrawn from the market.
If you need more information about the terms and conditions please let us know.
St Agnes Plus don’t forget the TIPS Bonus Pack
If you’re an Owner Occupier, the TIPS Kickstarter Package gives you, for no
cost:
Land Broker Service Fee (retail value $990)
TIPS Move-In Pack
OR
Investor Bonus Pack
Where you allow us to manage your property once it is completed for two years, the TIPS Bonus Pack gives you over $2,700 in value, for an investment of only $990, being:
Land Broker Service Fee (retail value $990)
Discounted Letting/Re-Letting & Renewal Fee (saving approximately $565)
Landlord Insurance 1st year to the value of $314
Advertising of Home for Rental (saving approximately $200)
BMT Tax Depreciation Report (retail value $770)
PLUS a Rent Guarantee for the first 12 months.
Ask your Property Marketing Consultant for a copy of the Bonus Pack form, with the full details including terms and conditions.
Form R3 : Buyers information notice
Land and Business (Sale and Conveyancing) Act 1994 section 13A Land and Business (Sale and Conveyancing) Regulations 2010 regulation 17
Before you buy a home there are a number of things that you should investigate and consider. Though it may not be obvious at the time, there could be matters that may affect your enjoyment of the property, the safety of people on the property or the value of the property.
The following questions may help you to identify if a property is appropriate to purchase. In many cases the questions relate to a variety of laws and standards. These laws and standards change over time, so it is important to seek the most up-to-date information. Various government agencies can provide up to date and relevant information on many of these questions. To find out more, Consumer and Business Services recommends that you check the website: www.cbs.sa.gov.au
Consider having a professional building inspection done before proceeding with a purchase. A building inspection will help you answer some of the questions below.
The questions have been categorised under the headings Safety, Enjoyment and Value, but all of the issues are relevant to each heading.
Safety
Is there asbestos in any of the buildings or elsewhere on the property eg sheds and fences?
Does the property have any significant defects eg cracking or salt damp? Have the wet areas been waterproofed?
Is the property in a bushfire prone area?
Are the electrical wiring, gas installation, plumbing and appliances in good working order and in good condition? Is a safety switch (RCD) installed? Is it working?
Are there any prohibited gas appliances in bedrooms or bathrooms?
Are smoke alarms installed in the house? If so, are they hardwired? Are they in good working order and in good condition? Are they compliant?
Is there a swimming pool and/or spa pool installed on the property? Are there any safety barriers or fences in place? Do they conform to current standards?
Does the property have any termite or other pest infestations? Is there a current preventive termite treatment program in place? Was the property treated at some stage with persistent organochlorins (now banned) or other toxic termiticides?
Has fill been used on the site? Is the soil contaminated by chemical residues or waste?
Does the property use cooling towers or manufactured warm water systems? If so, what are the maintenance requirements?
Enjoyment
Does the property have any stormwater problems?
Is the property in a flood-prone area? Is the property prone to coastal flooding?
Does the property have an on‐site wastewater treatment facility such as a septic tank installed? If so, what are the maintenance requirements? Is it compliant?
Is a sewer mains connection available?
Are all gutters, downpipes and stormwater systems in good working order and in good condition?
Is the property near power lines? Are there any trees on the property near power lines? Are you considering planting any trees Do all structures and trees maintain the required clearance from any power lines?
Are there any significant trees on the property?
Is this property a unit on strata or community title? What could this mean for you? Is this property on strata or community title? Do you understand the restrictions of use and the financial obligations of ownership? Will you have to pay a previous owner’s debt or the cost of planned improvements?
Is the property close to a hotel, restaurant or other venue with entertainment consent for live music?
Is the property close to any industrial or commercial activity, a busy road or airport etc that may result in the generation of noise or the emission of materials or odours into the air?
What appliances, equipment and fittings are included in the sale of the property?
Is there sufficient car parking space available to the property?
Value
Are there any illegal or unapproved additions, extensions or alterations to the buildings on the property?
How energy efficient is the home, including appliances and lighting? What energy sources (eg electricity, gas) are available?
Is the property connected to SA Water operated and maintained mains water? Is a mains water connection available? Does the property have a recycled water connection? What sort of water meter is located on the property (a direct or indirect meter – an indirect meter can be located some distance from the property)? Is the property connected to a water meter that is also serving another property?
Are there water taps outside the building? Is there a watering system installed? Are they in good working order and in good condition?
Does the property have alternative sources of water other than mains water supply (including bore or rainwater)? If so, are there any special maintenance requirements?
For more information on these matters visit: www.cbs.sa.gov.au
Form R7 Warning notice
Financial and investment advice
Land and Business (Sale and Conveyancing) Act 1994 section 24B Land and Business (Sale and Conveyancing) Regulations 2010 regulation 21
A land agent or sales representative who provides financial or investment advice to you in connection with the sale or purchase of land or a business is obliged to tell you the following —
You should assess the suitability of any purchase of the land or business in light of your own needs and circumstances by seeking independent financial and legal advice.
NOTE: For the purposes of section 24B of the Act, an agent or sales representative who provides financial or investment advice to a person in connection with the sale or purchase of land or a business must
in the case of oral advice – immediately before giving the advice, give the person warning of the matters set out in this Form orally, prefaced by the words “I am legally required to give you this warning“; or
in the case of written advice – at the same time as giving the advice or as soon as reasonably practicable after giving the advice, give the person this Form, printed or typewritten in not smaller than 12-point type.